DraftsmanAtlanta.com 770-847-6717
Draftsman Atlanta
I just finished drawings so Sam McGrath of Sequoia Design could get his
project on schedule, and get his building permit, and it was a success. See the actual drawings below.
Call Sam McGrath of Sequoia Design in Atlanta 678-535-8438 to get a reference for me.





**DraftsmanAtlanta.com* * Horace* * 770-847-6717* *
Business Hours
8am - 5pm Monday thru Friday
I am Horace, and I provide new construction house plans, and
remodeling house plans, in the Atlanta, Ga, area. I am a draftsman, who provides drafting, with CAD,
Computer Aided Drafting and Design. I have been drafting for 25 years.
A home design and drafting project with blueprints is a "research and development project." I give my attention and expertise to your plans as soon as we make contact.
I start giving you information, and refining your ideas, from the first moment we
start talking.
Average pricing is between $750 to $1950, that is for remodeling or new homes.
I discuss with you over the phone, to determine my price for your project.
I require 35% payment to start working on your project, which includes coming out the first time, and measuring your project, and taking pictures.
Consultation - No Obligation - $250 - I will spend a couple of hours at your site, home, project, and discuss your ideas, give you ideas, and help you decide what you need, if you do not already know what you want to do. There is no obligation, and I am not trying to sell you a contract. I just give you over twenty five years of experience help you decide. Then I leave, you can hire me, or get someone else to do your drawings. With this option of consultation, the $250 is not deducted from the Average prices above.
Changes - 2 -3 Changes are OK.
After those 2-3 changes, there may be a fee added for changes.
Some changes take 2-3 days. Other changes take a week or two to process.
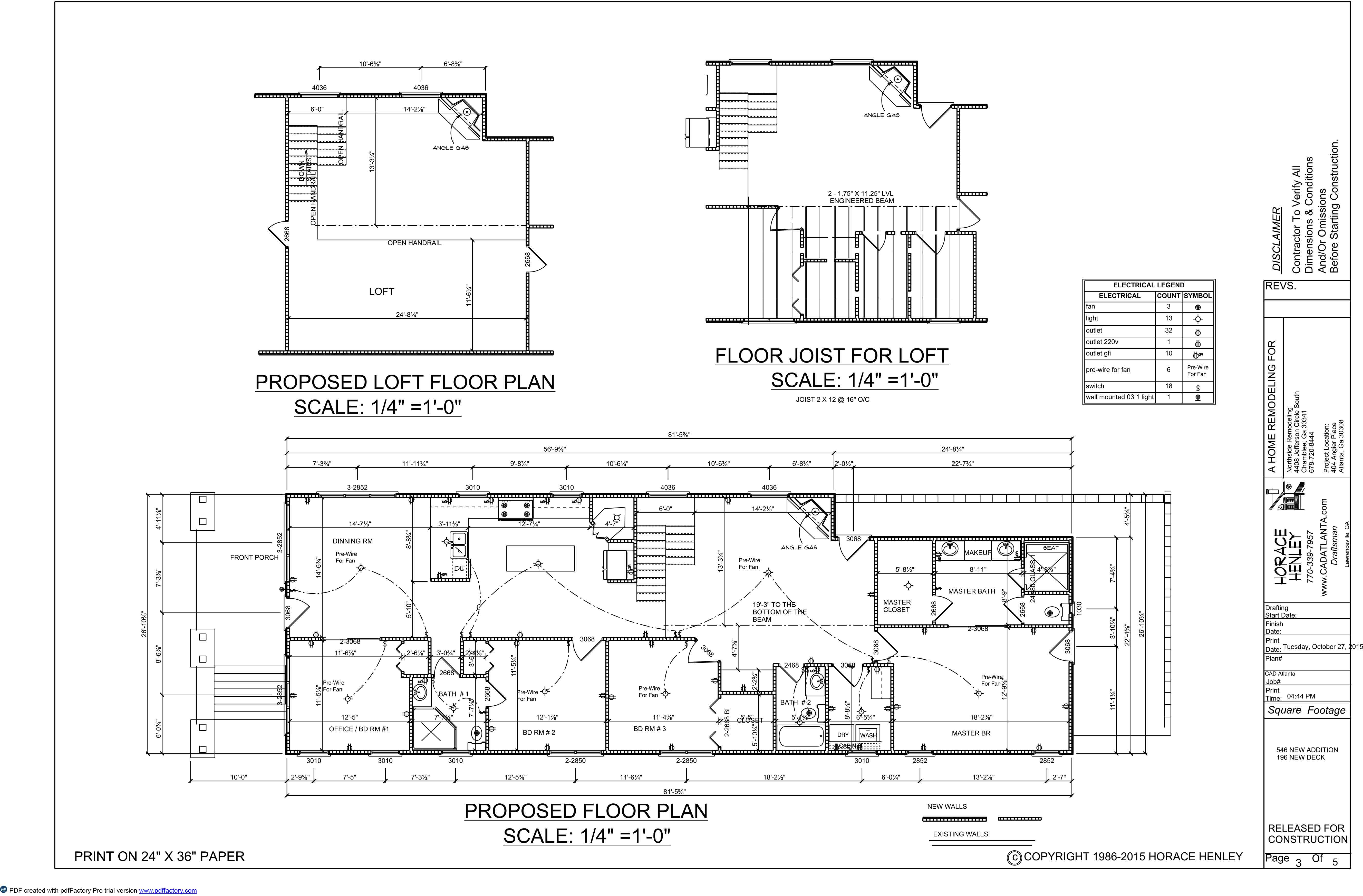
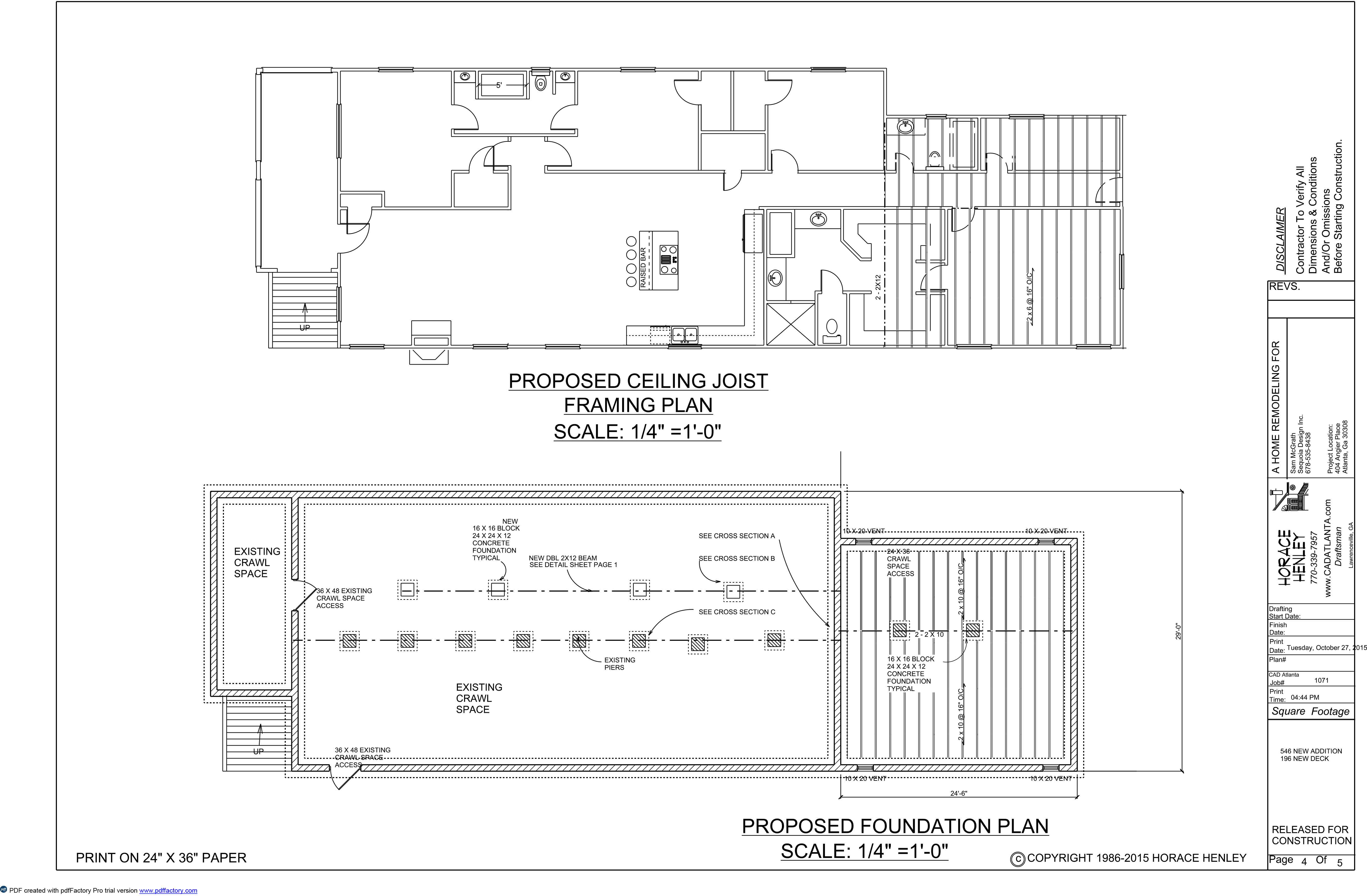
Included in the plans, depending on whether it is a new or remodeling project:
4 sets blueprints
floor plans
electrical plans
foundation plans
framing plans
elevation plans
ceiling joist plans
floor joist plans
roof framing plans
roof plans
plumbing plans
proposed floor plans
proposed elevations
existing floor plans
existing elevations
as-built floor plans
windows and doors labeled on the plans
wall sections
In the City of Atlanta, any engineered beams that are required for the home design, will require an
licensed engineer which is extra. You can hire the engineer. I can coordinate the process with the engineer.
November 2015 News -- Horace's list of references:
Sam McGrath - Sequoia Design - Atlanta 678-535-8438
Thomas Alexander - North Atlanta Properties - 404-569-8030
David Holtzclaw - North Atlanta Properties - 404-569-8032
Tom Kayler of Kayler Construction Services Atlanta Builder 678-414-3043
Ben Sikora of Alpha Builders Inc, & GA Carpenters Assoc. Atlanta Builder 770-403-0579
I can set down with your customer and work out the house plan that
best suits their demands. I take as-built measurements so I can draw the best plan possible.
What is included in a remodeling plan?
Design Plan.
The design plan will show what they want as the end result of the remodeling.
The new doors, windows, openings, appliances and electrical, will be shown in
the design plan.
As-Built Plan.
The As Built plan will show the existing floor plan, openings, windows,
doors, appliances, rough dimensions, and locations. AsBuilt drawings
are very helpful, even for out of town Architects, who are remodeling
structures locally, and need me to provide AsBuilt drawings for them
to work from.
Demolition Plan.
The demolition plan will show what is being removed, replaced, and changed,
but does not show the final layout, and design.
With AutoCAD, and CADD, I can produce drawings very efficiently.
Also with CAD, I can make changes easily, and quickly.
I can also provide CAD drawings for architects and contractors who wish to outsource these services.
Are you tired of waiting forever to get your houseplans drawn and put into blueprints?
I can create plans quickly and turn them around fast so you can start building.
A few weeks is all it takes to get your house plans job done.
Some small jobs can be done in a week.
A super large job can be finished is less than 2 months.
I love sketches drawn on a napkin, and scattered pictures torn out of a magazine.
I can take these sketches and pictures and create a set of house plan blueprints, with CAD, you can
take to the building department, and obtain the building permit.
Remodeling plans are my specialty. I go out to the project location,
take hands-on measurements and pictures of the existing house so I can make your
job easier, when I produce nice looking and quality blueprints for your project.
I first create a sketch, that I send to the client, home owner, before I get to far with the
project, so I can make sure I am on the right page, to save time, so you can get
started building this project asap.
I am not an Architect. I am a freelance draftsman.
Almost all counties do not require seal and stamp for residential house plans.
Seal and stamp are only required for commercial properties.
I have been providing house plans for homes in City of Atlanta,
any where else for that matter, in Georgia and Alabama, without seal and stamp for 25 years.
The code says for an "Residential Automatic Approval Certification (RAAC) is available for plans
prepared & sealed by a Georgia registered architect or engineer."
If you want to save money, not have an automatic approval, I can provide your plans.
The only counties that requiring seal and stamp are hurricane
zone counties, on the coast.
Some developers require seal and stamp, but that is not the county, that is the investor.
Do you have a plan that just needs a few changes, call me.
I provide 6 sets of plans with my plans at no extra charge.
This has always been a service since 1988.
Since 1988, I have been designing house plans and remodeling
house plans for contractors,
large and small. If you have any questions, feel free to call me at 770-339-7957.
If the building department has shut down your project, because you did not
have proper drawings, please give me a call.
Services Offered:
Atlanta Building Permit
Adding An Addition
Remodeling Basement
Basement Remodel
Drafting Blueprints
Design Adding Additional Rooms
Design Adding New Master Bedroom
Design Adding a New Garage
Design Adding a Mother-N-Law Suite
Design Adding a New Front Porch
Design Adding a Garage Apartment
Design Adding Bonus Room
Design Adding a New Screen Porch
Design Adding New Deck
Design of Finishing Basement
Design the Remodel of Kitchen
Design the Remodel of Master Bath
Improve Curb Appeal Design for a home or business
Design the Remodel of Whole House
Design the Remodel of Living Room
Design a New Custom Houseplan for a New Home on Lake Martin or Lake Lanier
Design a New Custom Houseplan for a Builder's New Spec Home in Atlanta or Birmingham
Design the Remodel of Master Bedroom
Location: Atlanta, Sandy Springs, Decatur, Lake Lanier and Georgia
Services and associates services offered:
conversions permit plans free estimate , contractor custom home design , deck design designer Remodels,
Permits , home plans and design , custom house plans , kitchen plans , layout design , Lighting plans ,
remodel remodeling , remodels , Electrical plans , render home addition, Cover sheets , CAD DRAWINGS ,
autocad, 3d rendering, building & saftey, construction, general contractor, kitchen remodeling,
Additions , building permit set, blueprints, floor plans, floor plan, contractor, carpenter, architecture,
architectural, engineer, engineering, firm, roof, san diego, remodeling , renovations, renovation,
assisted living home, elderly care home, home, house, bedroom, room addition, garage, attic, loft,
studio, railing, staircase, exterior, interior, deck, patio, porch, porches, sidewalks, landscaping, site plan,
floor plan, electrical plan, mechanical, foundation plan, door, window, schedules, construction management,
landscape plans , kitchen cabinets new construction, 2nd story addition, room addition,
kitchen design rendering renderings renovation residential, room addition, sections, siding, sketches,
surveying, structure, Addition plans , tenant improvement, TI trusses upgrade , autocad , cad addition,
as built as-built plans, asbuilt, as-built, autocad , basement bathroom , addition , blueprints , blue prints,
city permit, drywall , concrete , building plans , foundation, door drafting, drafter, draftsperson draftsman
drawing , drawings room addition , floor plans , guest house home addition construction documents ,
not a licensed architect, bachelors in architecture , architectural job captain, bathroom design, guest house,
garage conversion, remodel, plans, permits, drafting, drafter, autocad, kitchen cabinet drawings ,
chief architect , revit, structural engineer software, construction documents, engineering, blueprints, drafting,
bathroom remodeling, concrete. apartment building
Horace's Biography
Horace graduated from John Patterson Technical College in Montgomery Alabama where he
studied Technical Drawing of Blueprints, Structural Engineering and Three Dimensional Design.
Horace enjoys continuing studies of art and home design.
Since 1986, Horace has been designing and drafting magnificent homes for beautiful lake
front lots, outstanding estate homes at prestigious golf clubs and wonderful country homes.
Around Atlanta, Horace designed remodeling houseplans for Chris Papaik of
Atlantic Classics Building Group, LLC in Alpharetta, GA.
Also in Atlanta, Horace designed remodeling houseplans in the Downtown Area, Dunwoody
and Lithia Springs. Also, in Atlanta, for remodelor Mark Galey in Buckhead, Stone Mountain
and Stockbridge. Horace designed an addition for John Hoffman and Associates in Duluth, Georgia.
Horace has designed spectacular lake homes on Lake Martin in Central Alabama on the property
of Russell Lands Development Company, Willow Point, Windermere, Trillium, River Oaks,
The Ridge. Also on Lake Martin the neighborhoods of Still Waters and Blue Creek.
These are just a few of the neighborhoods where Horace has houseplans built that he designed.
He designed the first homes at Eagle's Landing, Eagle Point in Inverness,
Birmingham, Alabama for John Reamer.
For the late Gary Dent of Thornton Construction, Horace drew the first Greystone Village and
Linkside Houseplans at Greystone Golf Club. These plans were 1400-3000 square feet.
Horace redesigned the Greystone Ridge houseplans to be the Greystone Highlands houseplans.
These plans were 1500-2400 square feet.
Horace drew over 60 houseplans for Gary Thomas, American Homes and Land. These plans
range from 1100 to 8000 square feet. Horace also drew an 8000 square foot home for
Gary Thomas at Greystone Legacy.
Horace, with his vast experience, can design your plans big or small.
Remodeling plans or houseplans give you the opportunity to effectively estimate
the cost of building. A house plan gives everyone involved in the building process crucial information
about the vision of the house. Without a house plan or a remodeling plan to convey the home
owners ideas, the house will not become what they envisioned.
Horace has designed and drafted over 600 residential projects since 1988. With his vast
experience, he can design and finish your plans completely through the internet. My house plans include
the following items: floorplans, electrical plans, framing plans, foundation plans, elevation plans,
roof framing plans and typical section detail plans.
I give personlized attention to your project by going out to the home to measure and take pictures so that I can accurately design complete working drawings which will please the customer and obtain a building permit. I create working drawings on large paper, 24" X 36", or 18" X 24". My remodeling home plans are very clean and straight forward. I have my own D-size plotter and copier. Details are provided as required or as requested.
See Pricing Page for more details.
Below is a Description of How the Process Works
I work with you to design and develope the house plan of your dreams. All of my house plans are drawn to
National and International Building Codes. I take your ideas and put your dreams on paper so you can
(1) secure a loan, (2) get a building permit, and (3) a builder can build the home of your dreams. First, I
design a floor plan sketch on CADD and email, fax, mail or you can pick up the sketch to get your input
on the design. I take your suggestions and incorporate them into the plan. I resend you the floor plan with
the suggestions drawn in to the house design so as to get your feedback on the progress of the floor plan.
Second, I design elevation drawings according your input to fit the floor plan and email the elevations to you
to get your feedback. I take your suggestions and incorporate them into the plan. I resend you the floor plan
with the suggestions drawn in to the house design so as to get your feedback on the progress of the elevations.
Thirdly, I get your approval of the floor plans and elevations. Fourthly, I design modern electrical plans to
match your dream home and email the electrical plans to you to get your feedback. Finally, After approval
of the floor plans, elevations and electrical, I design the foundations and special details if any for your dream home.
Typical Emails from Clients
Begin Email---------------------------------------------------------------------------
Hi Horace, The last set of plans you sent to both myself and the Worthen's are good to go. Please print up 5 copies of blue lines and get them to me as soon as you can. Should you have any questions, please call me or respond here. -m End Email---------------------------------------------------------------------------
Begin Email--------------------------------------------------------------------------- Horace, As you can see this is a little different and some things can change. The mstr bedroom and possibly the keeping room and breakfast areas need to move or be extended so we can have the covered porch at least 10-12 ft deep. We plan to screen this area if needed so it might need a couple of columns at the outer edge. That Blank area between the fireplace wall and the mstr bdrm is just excess that just didn't fit up right. In the master bath, the double sinks do not need to be angled and we could go to one sink, but there does need to be a sit down area. The toilet does need to have a small sink within arms reach of the toilet and the toilet situated so a wheel chair could get to it. The master bath only needs a large shower with a seat in it and no threshold the ajacent master closet can get larger or squared off but we would like to keep the double doors if possible. The laundry room needs to be at least 6x8 and located approx. where it is now. The bath room in the middle of the house needs to be accessable to both bed rooms and the living area. There should also be plenty of room to get a wheel chair in there and over to the toilet and tub. That area behind the tub does not need to be there, it was a hwhtr and a closet; however both rooms do need a closet. The two extra bedrooms configuration and size can certainly change but if possible we would like them to be approx. 12x12. All doors that people pass through should be at least 36 inches. Outside walls should be 2x6, interior walls 2x4. The pantry needs to be a little larger. The foyer can change as needed. The garage can certainly move as can the basement access. Both fire places can and should be removed. If we decide to have one it will have to be self contained gas. The grand room is adjustable but needs double french doors to the porch with windows on each side. The sacred area needs to stay very much as is. The mstr bdrm can get some smaller as a last resort. Call me and let me know what you think. Thanks,
End Email------------------------------------------------------------------------------
Begin Email------------------------------------------------------------------------------ Horace, ********* and I have done some work on your drawings. We want to make the following changes. 1. Inside the new steps would only be 2-3 steps with hand rails 2. We want to start the back right side(Facing the back of house) inside of the last window in the den, so we need to move the office up in the room saving the window in the den 3. We want to add an outside covered awning/landing with a post on each end the entire length of the gable, approx 7-10' of landing, approx 2-3 steps down to ground level, steps would cross the entire length of landing. 4. Let's get rid of the existing gap in the back left of the house, where the door is now, that looks like wasted space 5. We would want double doors coming out of the side of the house Let's get the bottom floor completed before we work on the 2nd floor. Thanks for your help,
End Email-----------------------------------------------------------------------------
Begin Email--------------------------------------------------------------------------
Horace, the plans are really looking good. After talking it over with Margaret, we're going to need to modify a few things to reduce costs, I thought the bonus room would make it around 4400, not 4800 sq ft. But we love the plan layout, so here is what we need to do, so we can actually afford to build it. There is a lot of text here, but other than the 1st item, it's all mostly cosmetic.
1) We want to remove the curved staircase, and go with a standard 3 section straight staircase, with 2 landings. This means getting rid of the curved exterior wall, and continuing the square wall from the 1st floor, into the second floor, having the staircase follow the contours of the square wall. I think that may effect the powder room on the 1st floor, but I'm not sure by how much. That will also make the roof easier to deal with, I think. We will want it to be all brick on the front now, no stucco. We do want the banding to extend into this new all brick square staircase exterior.
2) Remove the arch doorway between the MBR and the Hall, that should be a standard square doorway. Keep the archway between the Hall and the MBATH.
3) Per your direction, remove the window in the MBATH, and replace with a mirror.
4) Add a window (double window), centered over the 1st landing on the staircase, at 2nd floor height. This will be a stained glass or etched glass fixed window, not an opening window.
5) When you square the staircase, it will cut into the space we planned for the Christmas closet. So what we want to do is square off that wall, creating a closet that goes down to the first wall angle in the billiard room, with a doorway into the closet from the billiard room side, not the bar side. So when you walk into the billiard room, there is the bar on the right, and a wall on the left, extending down to the 1st left corner. I hope I'm explaining that ok.
6) We also want to build out the wall between the 2 windows over the garage doors, and put a ventless fireplace in that wall. The wall should go from floor to ceiling, but should not take up the whole space between the windows, maybe just 3/4 of the space, or even 1/2, whichever looks better.
7) The elevator requires a minimum of 6" pit depth below the elevator, for your foundation plan.
8) Remove the built-in Entertainment center in the Family Room, we have a wood one, we'll be placing there. I need a space at least 8' 6" long to put my entertainment center into the space.
9) The french doors in the Dining Room need to open in, not out.
10) We want to show a built-in desk in the Study, along the wall with the Guest Bathroom.
11) Remove the brick columns out back, and replace with white square columns, on both levels. Add a wrought iron railing to the 2nd floor balcony.
12) in the Billiard Room, we want a vaulted ceiling, with exposed beams.
13) in the Foyer, you currently have square walls (from the original
drawing) as support for the Sitting Area upstairs. We want to replace those with Columns, so there should be columns between the Foyer / Staircase, and the Family Room, to help with the open feeling of the space.
14) Remove the arches above the windows on the 1st floor, they should be squared, just like the 2nd floor windows. As a note, the keystones need to be rough hewn stone, not smooth.
15) for conformity, I think the window next to the door in the breakfast nook may need to be the same size as the other two in that space, what do you think?
16) The glass block shower may also be a steam shower, so it needs to seal to the ceiling. Don't know if you had that in your drawings or not. We also need to remove the curve, and make that a straight wall, so the shower will be about 5x5. We want the outside wall of the shower to be a normal wall, with a glass block window, not all glass block.
17) With squaring the stairwell, I'm not sure we want a curved balcony, probably a straight one, in keeping with the clean lines, and lower cost objective.
Where you have stucco listed on the sides for certain areas, that may end up being siding.
The walls look great coming out the sides like they do.
Do we need to tell you where we want trey ceilings? Master Bedroom, Home Theater.
In the home theater, I'm going to want diffusing vents for the HVAC, not normal vents. But I don't know if that is detail you need to know or not.
I know you wanted to show the HVAC on the plans in the billiard room, but I don't want to use up valuable closet space by putting it there. It really need to go into the attic somewhere.
Hopefully, we can make these changes, and be done with the plans by Friday of this week?
Thanks,
> The plans are looking good.
> I like the arrangement of the Billiard Room, Bar, and Christmas Light
> storage.
>
> The heated square footage is 4805.
>
> Looks like the window in the Master Dressing Area
> will have to be taken out unless the roof pitch is lowered in that
> area or the room is enlarged.
> Atlanta Draftsman
>
Draftsman Atlanta